Ford Focus Mk2 Wiring Diagram

Vt Commodore Ignition Wiring Diagram, Complete Wiring Diagrams For Holden Commodore VT, VX, VY, VZ, VE, VF, 5.36 MB, 03:54, 32,796, John Amahle, 2018-08-01T19:37:41.000000Z, 19, Vt Commodore Ignition Wiring Diagram, to-ja-to-ty-to-my-to-nasz-swiat.blogspot.com, 1272 x 1800, jpeg, bcm pcm 12j swiat nasz, 20, vt-commodore-ignition-wiring-diagram, Anime Arts
This video demonstrates the ford focus complete wiring diagrams and details of the wiring harness. Diagrams for the following systems are included : Joined apr 17, 2011. #2 · jul 3, 2011.
Ford focus mk4 wiring diagram select your year, make and model. Then choose the wiring diagram that best fits the repair issue or problem. Ford focus full wiring schematics mk2/2. 5 and mk3 ford focus full wiring schematics mk2/2. 5 and mk3. By preee, april 19, 2013 in ford focus club. Very usefull indeed if your trying to figure out additions to your car or find wiring regards preee focus 2011 wiring. pdf. As stated earlier if you are installing a new or aftermarket stereo into your focus, you will need a install kit like the one shown above. Published by ford motor company ltd/ford werke ag. No part of this publication may be reproduced, stored in a retrieval system. Totally free ford wiring diagrams!
FORD FOCUS MK2 2.5 PH8M5T FULL WIRING DIAGRAM Service Manual download, schematics, eeprom

Ford Focus Mk2 Wiring Diagram (com imagens)

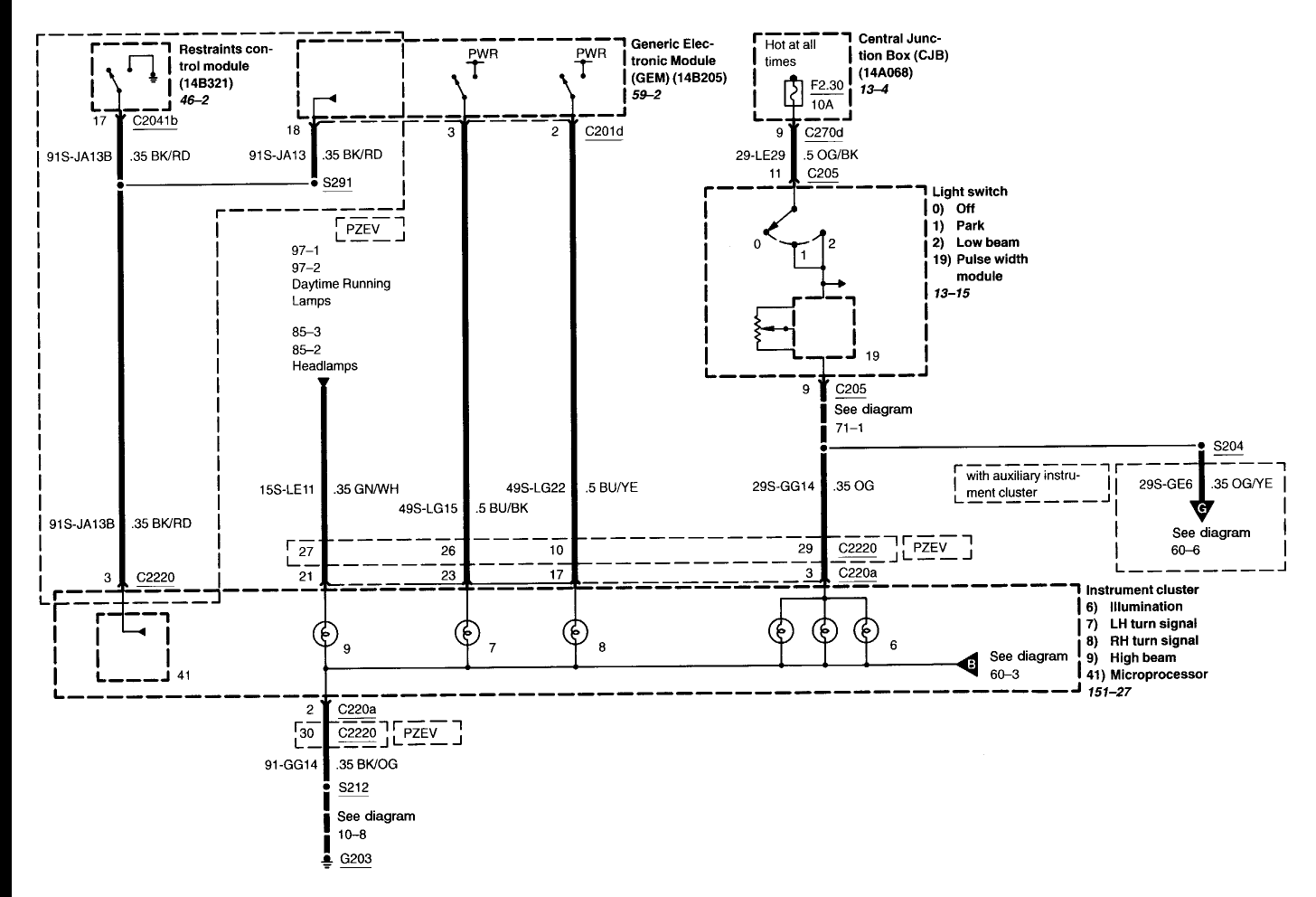
Ford Focus MK2 Headlight Switch Wiring Diagram | Vehicles | Car Body Styles
Ford focus mk2 towbar wiring diagram
Ford Focus Mk2 Wiring Diagram / Schaltplan Ford Focus St Mk2 - Electrical wiring diagram manual

Ford Focus Mk2 Alternator Wiring Diagram - WIRGREM
Ford Focus MK2.5 (2008-2012) Stereo Removal ST/RS - James Simpson
